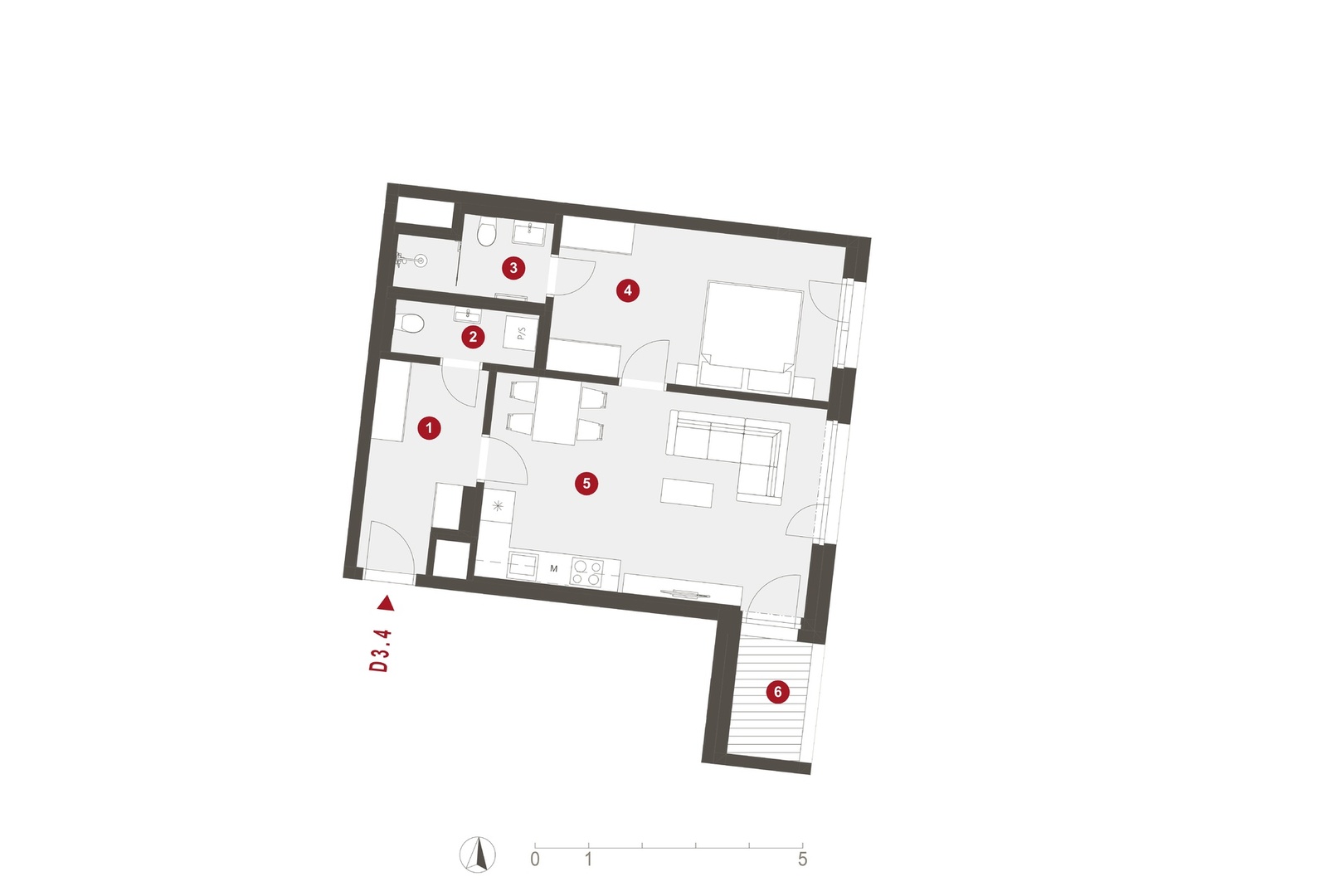
Byt D3.4
3.NP
| dispozice | plocha | B/L/T | transakce | cena celkem | do katalogu |
|---|---|---|---|---|---|
|
2+kk
|
57.9 m2
|
L
|
prodej
|
zobrazit cenu |
poptat nemovitost
kk - kuchyňský kout |
B - balkón |
L - lodžie |
T - terasa
| PLOCHA JEDNOTKY | 57.9 m2 |
|---|---|
| 01 vstupní hala | 7.2 m2 |
| 02 wc | 2.8 m2 |
| 03 koupelna s wc | 4 m2 |
| 04 ložnice | 15.5 m2 |
| 05 obývací pokoj + kk | 24 m2 |
| příčky, sloupy a šachty | 4.4 m2 |
| CELKOVÁ PLOCHA | 63.4 m2 |
| 01 sklep | 2.5 m2 |
|---|---|
| 06 lodžie | 3 m2 |
| Garážové stání | G02.81 |
|---|---|
| sklep | SK01.20 |
| cena garážového stání* | zobrazit cenu |
| *Cena jednotky nezahrnuje garážové stání. | |
plánek podlaží
