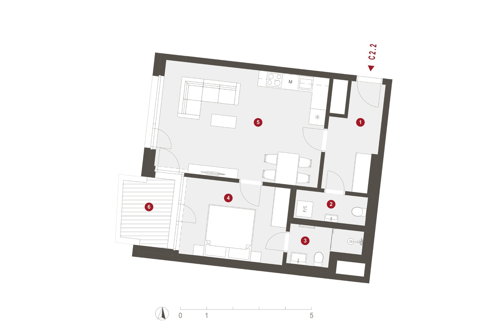
Byt C2.2
2.NP
| dispozice | plocha | B/L/T | transakce | cena celkem | do katalogu |
|---|---|---|---|---|---|
|
2+kk
|
56.9 m2
|
B
|
prodej
|
zobrazit cenu |
poptat nemovitost
kk - kuchyňský kout |
B - balkón |
L - lodžie |
T - terasa
| PLOCHA JEDNOTKY | 56.9 m2 |
|---|---|
| 01 vstupní hala | 7.1 m2 |
| 02 wc | 3.2 m2 |
| 03 koupelna s wc | 3.8 m2 |
| 04 ložnice | 11.7 m2 |
| 05 obývací pokoj + kk | 26.2 m2 |
| příčky, sloupy a šachty | 4.9 m2 |
| CELKOVÁ PLOCHA | 64.2 m2 |
| 01 sklep | 4.5 m2 |
|---|---|
| 06 balkon | 2.8 m2 |
| Garážové stání | G01.07 |
|---|---|
| sklep | SK01.03 |
| cena garážového stání* | zobrazit cenu |
| *Cena jednotky nezahrnuje garážové stání. | |
plánek podlaží
