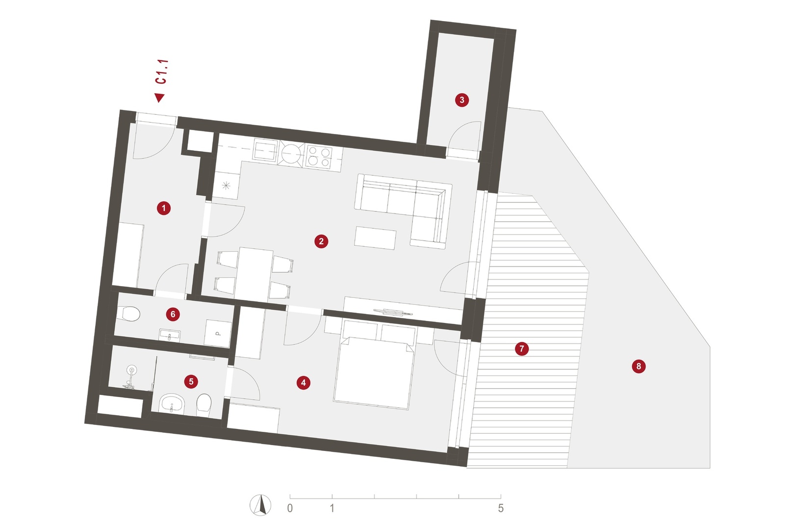
Byt C1.1
1.NP
| dispozice | plocha | B/L/T | transakce | cena celkem | do katalogu |
|---|---|---|---|---|---|
|
2+kk
|
61.8 m2
|
T
|
prodej
|
zobrazit cenu |
poptat nemovitost
kk - kuchyňský kout |
B - balkón |
L - lodžie |
T - terasa
| PLOCHA JEDNOTKY | 61.8 m2 |
|---|---|
| 01 vstupní hala | 7.2 m2 |
| 02 obývací pokoj + kk | 24.1 m2 |
| 03 komora | 3.5 m2 |
| 04 ložnice | 15.3 m2 |
| 05 koupelna s wc | 4.2 m2 |
| 06 wc | 3.3 m2 |
| příčky, sloupy a šachty | 4.2 m2 |
| CELKOVÁ PLOCHA | 97.2 m2 |
| 01 sklep | 3.7 m2 |
|---|---|
| 07 terasa | 13.3 m2 |
| 08 terasa se zelení | 18.4 m2 |
| sklep | SK01.01 |
|---|---|
| Garážové stání | G01.126 |
| cena garážového stání* | zobrazit cenu |
| *Cena jednotky nezahrnuje garážové stání. | |
plánek podlaží
