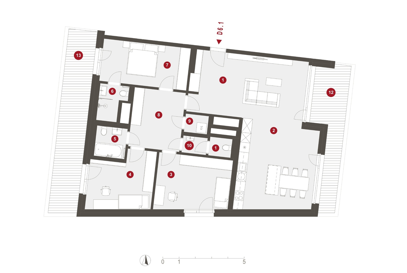
Byt D6.1
6.NP
| dispozice | plocha | B/L/T | transakce | cena celkem | do katalogu |
|---|---|---|---|---|---|
|
4+kk
|
131.3 m2
|
T
|
prodej
|
zobrazit cenu |
poptat nemovitost
kk - kuchyňský kout |
B - balkón |
L - lodžie |
T - terasa
| PLOCHA JEDNOTKY | 131.3 m2 |
|---|---|
| 01 vstupní hala | 13.1 m2 |
| 02 obývací pokoj + kk | 39.5 m2 |
| 03 ložnice | 14.9 m2 |
| 04 ložnice | 13.2 m2 |
| 05 koupelna s wc | 4 m2 |
| 06 koupelna s wc | 3.6 m2 |
| 07 ložnice | 13.8 m2 |
| 08 chodba | 11.6 m2 |
| 09 komora | 1.7 m2 |
| 10 předsíň wc | 1.7 m2 |
| 11 wc | 1.8 m2 |
| příčky, sloupy a šachty | 12.4 m2 |
| CELKOVÁ PLOCHA | 169.3 m2 |
| 01 sklad | 4.7 m2 |
|---|---|
| 12 terasa | 14 m2 |
| 13 terasa | 19.3 m2 |
| Garážové stání | G01.01 |
|---|---|
| Garážové stání | G01.02 |
| sklad | SK01.39 |
| cena garážových stání* | zobrazit cenu |
| *Cena jednotky nezahrnuje garážové stání. | |
plánek podlaží
