Byt D4.1
4.NP
| dispozice | plocha | B/L/T | transakce | cena celkem | do katalogu | 
|---|---|---|---|---|---|
| 2+kk | 58.3                                    m2 | B | prodej | prodáno | 
poptat nemovitost
                
                
            
                kk - kuchyňský kout |
                B - balkón |
                L - lodžie                |
                T - terasa                
				                             
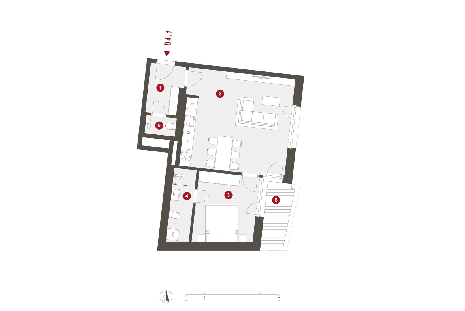
			| PLOCHA JEDNOTKY | 58.3 m2 | 
|---|---|
| 01 vstupní hala | 4.8 m2 | 
| 02 obývací pokoj + kk | 30.1 m2 | 
| 03 ložnice | 12.1 m2 | 
| 04 koupelna s wc | 5.4 m2 | 
| 05 wc | 2 m2 | 
| příčky, sloupy a šachty | 3.9 m2 | 
| CELKOVÁ PLOCHA | 67 m2 | 
| 01 sklep | 4.1 m2 | 
|---|---|
| 06 balkon | 4.6 m2 | 
 
						                     
                