Můj katalog

Tyto nemovitosti jste si vybral/a do svého katalogu. Budete-li mít zájem, můžete jednotlivé položky řadit dle potřeby, odebrat z katalogu nebo naopak přidat z dříve prohlížených položek. Stažení katalogu dokončíte stisknutím tlačítka „stáhnout můj katalog“.

Vybrané nemovitosti

bytová jednotka projekt plocha karta nemovitosti transakce odebrat z katalogu

stáhnout katalog | stáhnout katalog / ceník

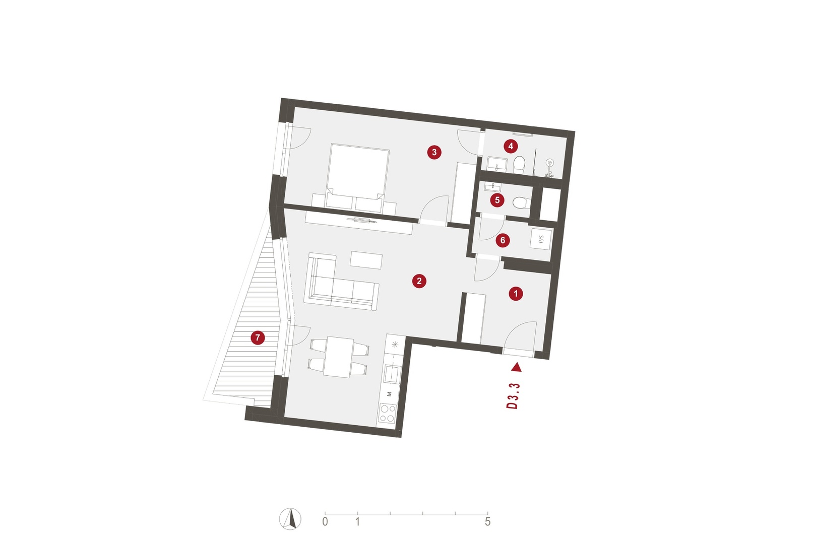
Byt D3.3

3.NP

dispozice plocha B/L/T transakce cena celkem do katalogu
2+kk
64.4 m2
B
prodej
prodáno
poptat nemovitost
kk - kuchyňský kout | B - balkón | L - lodžie | T - terasa
 
PLOCHA JEDNOTKY 64.4 m2
01 vstupní hala 6.4 m2
02 obývací pokoj + kk 28.7 m2
03 ložnice 17.2 m2
04 koupelna s wc 3.5 m2
05 wc 1.8 m2
06 předsíň wc 2.7 m2
příčky, sloupy a šachty 4.1 m2
CELKOVÁ PLOCHA 71.9 m2
01 sklep 1.7 m2
07 balkon 5.8 m2
sklep SK01.19
Garážové stání G02.66
cena garážového stání*
*Cena jednotky nezahrnuje garážové stání.
plánek podlaží
Byt D3.3
1. podzemní podlaží
1. podzemní podlaží
2. podzemní podlaží
2. podzemní podlaží

Standardy

Standardy bytové jednotky

Domluvit si schůzku či prohlídku

Potřebujete více informací o nemovitosti nebo si chcete sjednat prohlídku? Vyplňte formulář a my se vám obratem ozveme.

Vaše osobní údaje budou zpracovány podle Podmínek zpracování osobních údajů.


Generování PDF

Nemovitost přidána do katalogu