0

Můj katalog

Tyto nemovitosti jste si vybral/a do svého katalogu. Budete-li mít zájem, můžete jednotlivé položky řadit dle potřeby, odebrat z katalogu nebo naopak přidat z dříve prohlížených položek. Stažení katalogu dokončíte stisknutím tlačítka „stáhnout můj katalog“.

Vybrané nemovitosti

bytová jednotka projekt plocha karta nemovitosti transakce odebrat z katalogu

stáhnout katalog | stáhnout katalog / ceník

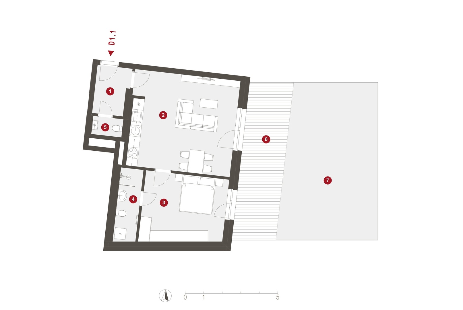
Byt D1.1

1.NP

dispozice plocha B/L/T transakce cena celkem do katalogu
2+kk
62.3 m2
T
prodej
prodáno
poptat nemovitost
kk - kuchyňský kout | B - balkón | L - lodžie | T - terasa
 
PLOCHA JEDNOTKY 62.3 m2
01 vstupní hala 5 m2
02 obývací pokoj + kk 29.8 m2
03 ložnice 16.4 m2
04 koupelna s wc 5.7 m2
05 wc 2.1 m2
příčky, sloupy a šachty 3.3 m2
CELKOVÁ PLOCHA 128 m2
01 sklep 3.2 m2
06 terasa 9.9 m2
07 terasa se zelení 52.6 m2
Garážové stání G01.17
sklep SK01.13
cena garážového stání*
*Cena jednotky nezahrnuje garážové stání.
plánek podlaží
Byt D1.1
1. podzemní podlaží
1. podzemní podlaží

Standardy

Standardy bytové jednotky

Domluvit si schůzku či prohlídku

Potřebujete více informací o nemovitosti nebo si chcete sjednat prohlídku? Vyplňte formulář a my se vám obratem ozveme.

Vaše osobní údaje budou zpracovány podle Podmínek zpracování osobních údajů.


Generování PDF