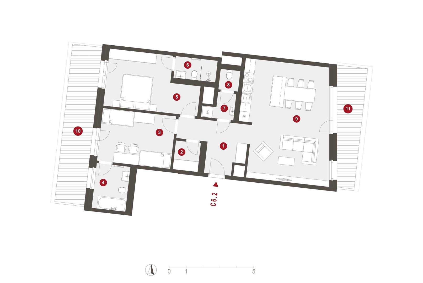
Byt C6.2
6.NP
| dispozice | plocha | B/L/T | transakce | cena celkem | do katalogu |
|---|---|---|---|---|---|
|
3+kk
|
98.3 m2
|
T
|
prodej
|
prodáno |
poptat nemovitost
kk - kuchyňský kout |
B - balkón |
L - lodžie |
T - terasa
| PLOCHA JEDNOTKY | 98.3 m2 |
|---|---|
| 01 vstupní hala | 9.3 m2 |
| 02 šatna | 2.5 m2 |
| 03 ložnice | 13.6 m2 |
| 04 koupelna s wc | 5.4 m2 |
| 05 ložnice | 16.1 m2 |
| 06 koupelna s wc | 3.3 m2 |
| 07 předsíň wc | 2.3 m2 |
| 08 wc | 1.6 m2 |
| 09 obývací pokoj + kk | 35.1 m2 |
| příčky, sloupy a šachty | 9.1 m2 |
| CELKOVÁ PLOCHA | 133 m2 |
| 01 sklep | 4.5 m2 |
|---|---|
| 10 terasa | 17.1 m2 |
| 11 terasa | 13.1 m2 |
