0

Můj katalog

Tyto nemovitosti jste si vybral/a do svého katalogu. Budete-li mít zájem, můžete jednotlivé položky řadit dle potřeby, odebrat z katalogu nebo naopak přidat z dříve prohlížených položek. Stažení katalogu dokončíte stisknutím tlačítka „stáhnout můj katalog“.

Vybrané nemovitosti

bytová jednotka projekt plocha karta nemovitosti transakce odebrat z katalogu

stáhnout katalog | stáhnout katalog / ceník

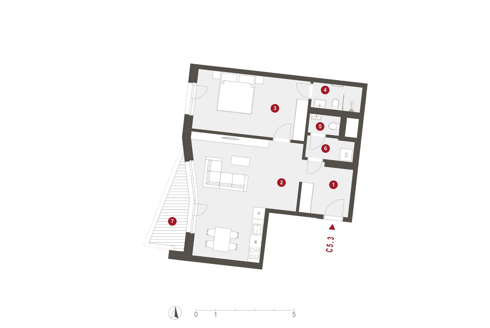
Byt C5.3

5.NP

dispozice plocha B/L/T transakce cena celkem do katalogu
2+kk
64.9 m2
B
prodej
prodáno
poptat nemovitost
kk - kuchyňský kout | B - balkón | L - lodžie | T - terasa
 
PLOCHA JEDNOTKY 64.9 m2
01 vstupní hala 6.6 m2
02 obývací pokoj + kk 28.5 m2
03 ložnice 17.6 m2
04 koupelna s wc 3.2 m2
05 wc 1.7 m2
06 šatna 2.7 m2
příčky, sloupy a šachty 4.6 m2
CELKOVÁ PLOCHA 74.6 m2
01 sklep 4.3 m2
07 balkon 5.4 m2
sklep SK01.37
Garážové stání G01.38
cena garážového stání*
*Cena jednotky nezahrnuje garážové stání.
plánek podlaží
Byt C5.3
1. podzemní podlaží
1. podzemní podlaží

Standardy

Standardy bytové jednotky

Domluvit si schůzku či prohlídku

Potřebujete více informací o nemovitosti nebo si chcete sjednat prohlídku? Vyplňte formulář a my se vám obratem ozveme.

Vaše osobní údaje budou zpracovány podle Podmínek zpracování osobních údajů.


Generování PDF