Byt C3.3
3.NP
| dispozice | plocha | B/L/T | transakce | cena celkem | do katalogu |
|---|---|---|---|---|---|
|
2+kk
|
64.8 m2
|
B
|
prodej
|
zobrazit cenu |
poptat nemovitost
kk - kuchyňský kout |
B - balkón |
L - lodžie |
T - terasa
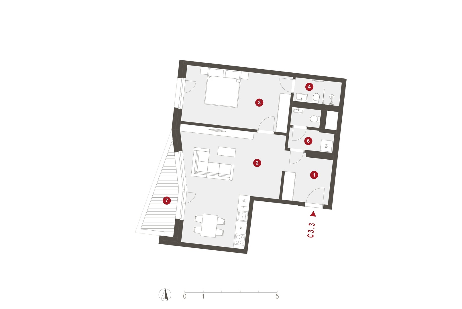
| PLOCHA JEDNOTKY | 64.8 m2 |
|---|---|
| 01 vstupní hala | 6.6 m2 |
| 02 obývací pokoj + kk | 28.8 m2 |
| 03 ložnice | 17.6 m2 |
| 04 koupelna s wc | 3.5 m2 |
| 05 wc | 1.7 m2 |
| 06 šatna | 2.7 m2 |
| příčky, sloupy a šachty | 3.9 m2 |
| CELKOVÁ PLOCHA | 72.6 m2 |
| 01 sklep | 2.4 m2 |
|---|---|
| 07 balkon | 5.4 m2 |
| Garážové stání | G01.41 |
|---|---|
| sklep | SK01.34 |
| cena garážového stání* | zobrazit cenu |
| *Cena jednotky nezahrnuje garážové stání. | |
plánek podlaží
