0

Můj katalog

Tyto nemovitosti jste si vybral/a do svého katalogu. Budete-li mít zájem, můžete jednotlivé položky řadit dle potřeby, odebrat z katalogu nebo naopak přidat z dříve prohlížených položek. Stažení katalogu dokončíte stisknutím tlačítka „stáhnout můj katalog“.

Vybrané nemovitosti

bytová jednotka projekt plocha karta nemovitosti transakce odebrat z katalogu

stáhnout katalog | stáhnout katalog / ceník

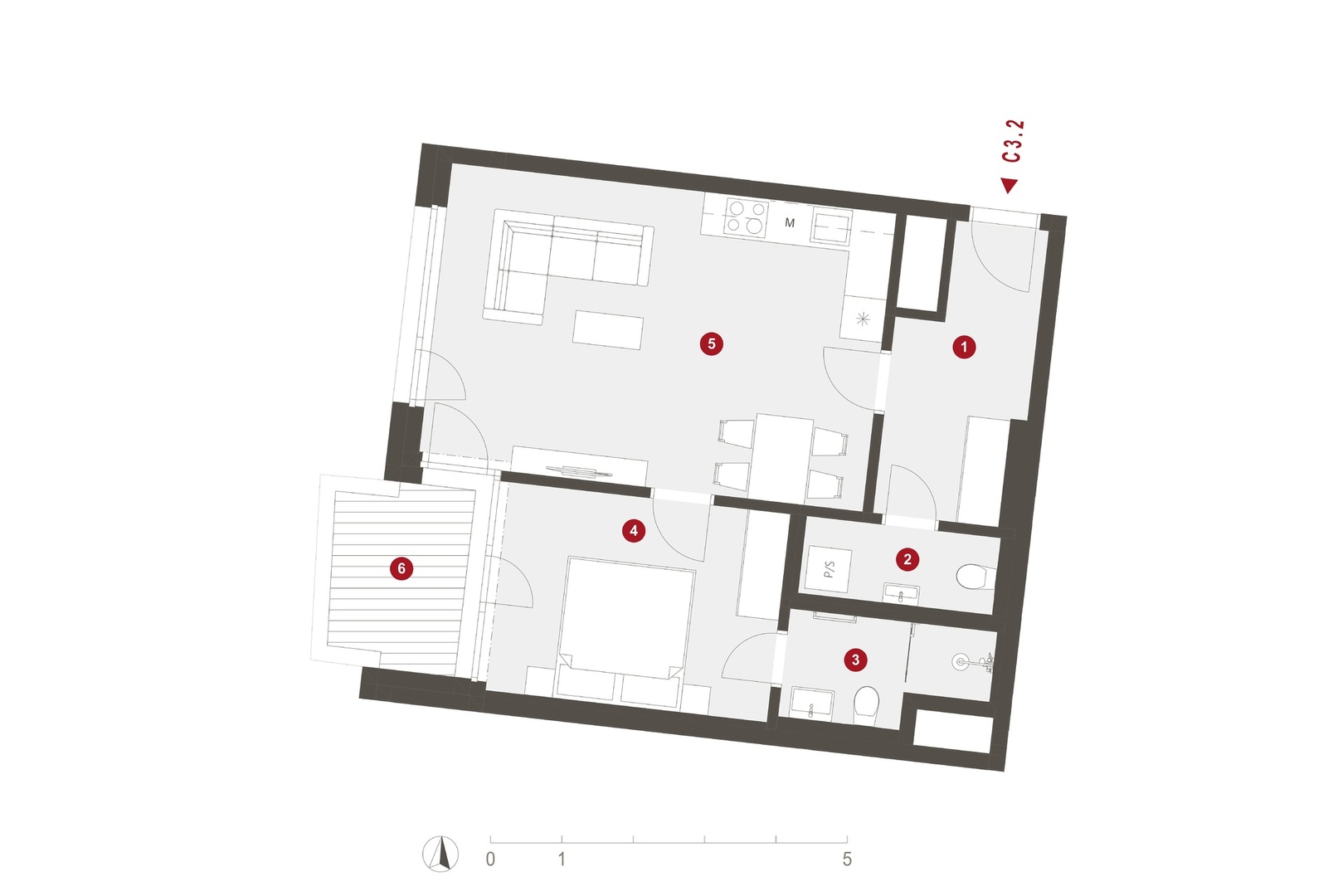
Byt C3.2

3.NP

dispozice plocha B/L/T transakce cena celkem do katalogu
2+kk
57 m2
B
prodej
10 290 000 CZK
poptat nemovitost
kk - kuchyňský kout | B - balkón | L - lodžie | T - terasa
 
PLOCHA JEDNOTKY 57 m2
01 vstupní hala 7.1 m2
02 wc 3.2 m2
03 koupelna s wc 4.1 m2
04 ložnice 11.7 m2
05 obývací pokoj + kk 26.2 m2
příčky, sloupy a šachty 4.7 m2
CELKOVÁ PLOCHA 66.2 m2
01 sklep 4.3 m2
06 balkon 4.9 m2
Garážové stání G01.11
sklep SK01.06
cena garážového stání* 600 000 CZK
*Cena jednotky nezahrnuje garážové stání.
plánek podlaží
Byt C3.2
1. podzemní podlaží
1. podzemní podlaží

Standardy

Standardy bytové jednotky

Domluvit si schůzku či prohlídku

Potřebujete více informací o nemovitosti nebo si chcete sjednat prohlídku? Vyplňte formulář a my se vám obratem ozveme.

Vaše osobní údaje budou zpracovány podle Podmínek zpracování osobních údajů.


Generování PDF