Můj katalog

Tyto nemovitosti jste si vybral/a do svého katalogu. Budete-li mít zájem, můžete jednotlivé položky řadit dle potřeby, odebrat z katalogu nebo naopak přidat z dříve prohlížených položek. Stažení katalogu dokončíte stisknutím tlačítka „stáhnout můj katalog“.

Vybrané nemovitosti

bytová jednotka projekt plocha karta nemovitosti transakce odebrat z katalogu

stáhnout katalog | stáhnout katalog / ceník

Komerční prostory A1.101

1.NP

dispozice plocha B/L/T transakce cena celkem do katalogu
nebytový prostor
108.5 m2
prodej
14 490 000 CZK
poptat nemovitost
kk - kuchyňský kout | B - balkón | L - lodžie | T - terasa
 
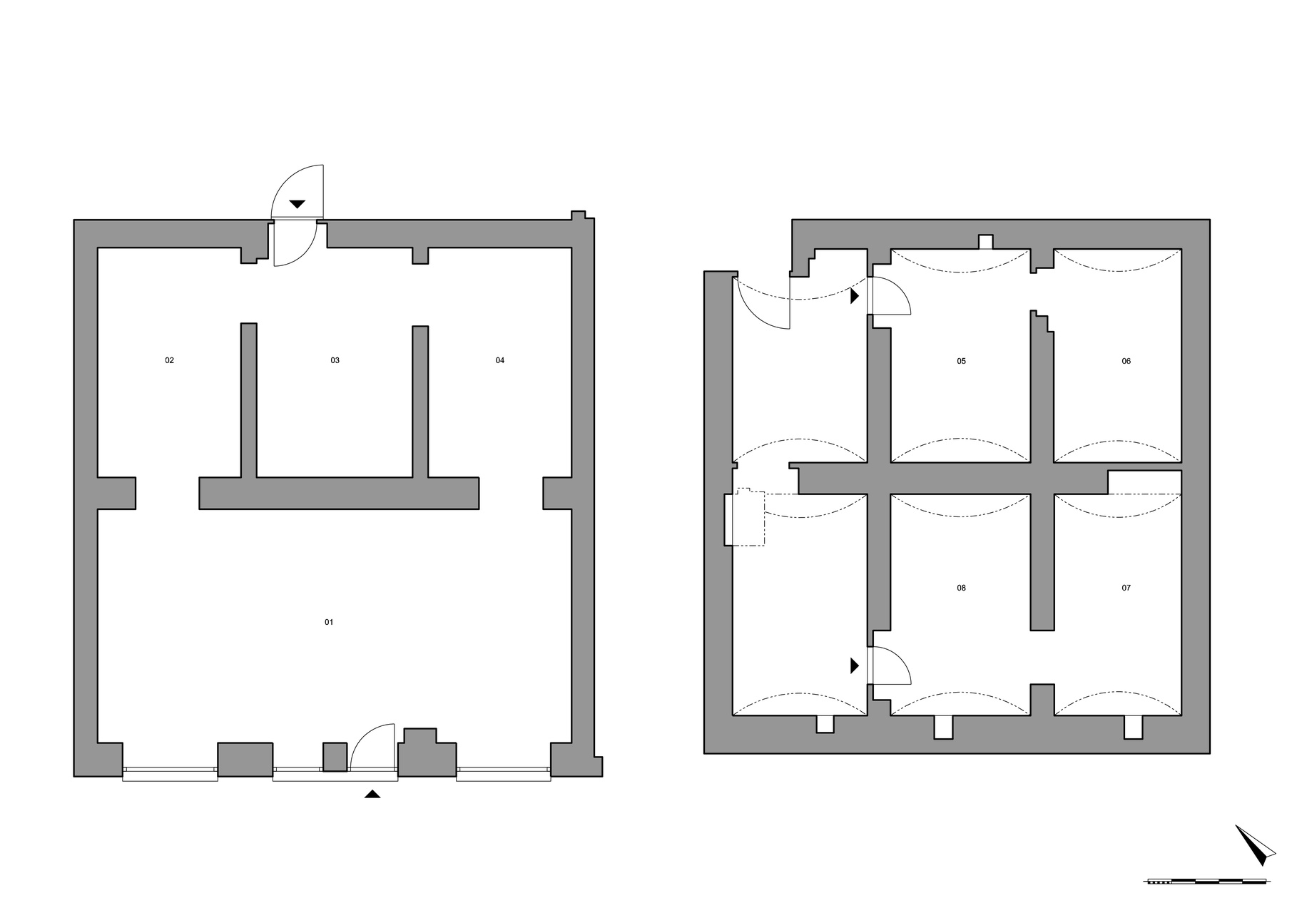
PLOCHA JEDNOTKY 108.5 m2
01 komerční prostor 50.7 m2
02 komerční prostor 15.4 m2
03 komerční prostor 17 m2
04 komerční prostor 15.4 m2
komerční prostor 10 m2
CELKOVÁ PLOCHA 263.9 m2
01 sklad 93.4 m2
05 sklep 14 m2
06 sklep 12.7 m2
07 sklep 14.8 m2
08 sklep 13.7 m2
sklep 6.8 m2
01 Parkovací stání 0 m2
sklad SK1.02
Parkovací stání P01
sklep SK01.01
sklep SK01.01
sklep SK01.01
sklep SK01.01
sklep SK01.01

fotogalerie

Domluvit si schůzku či prohlídku

Potřebujete více informací o nemovitosti nebo si chcete sjednat prohlídku? Vyplňte formulář a my se vám obratem ozveme.

Vaše osobní údaje budou zpracovány podle Podmínek zpracování osobních údajů.


Generování PDF

Nemovitost přidána do katalogu