0

My catalog

You have selected these properties for you catalogue. If interested, you can sort individual items as needed, take them out of the catalogue or add items viewed earlier. Complete downloading of the catalogue by clicking the button "Download my catalogue“.

Selected properties

flat residence area Card of properties transaction remove from the catalog

download catalog | Download catalogue / price list

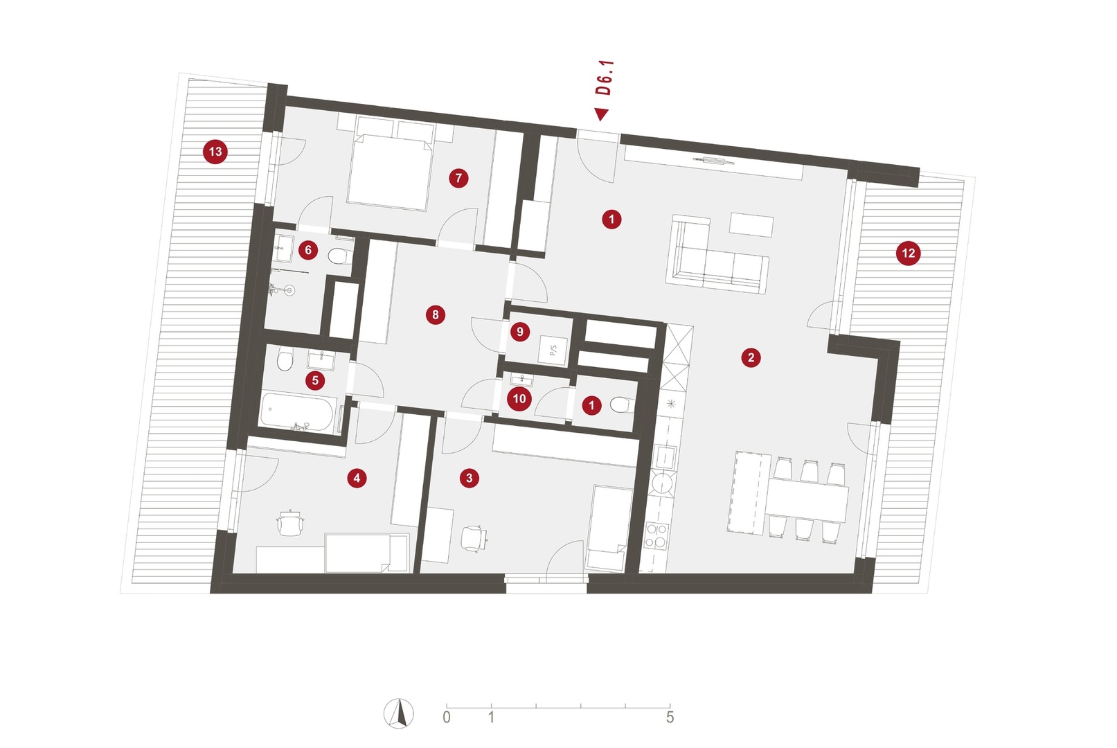
Byt D6.1

6.NP

disposition area B/L/T transaction final price add to the catalogue
4 bedrooms + kitchen corner
131.3 m2
T
sale
display the price
kk - Kitchen corner | B - balcony | L - lodge | T - terrace
 
Unit area 131.3 m2
01 Entrance hall (foyer) 13.1 m2
02 Living room + KK 39.5 m2
03 Bedroom 14.9 m2
04 Bedroom 13.2 m2
05 Bathroom with WC 4 m2
06 Bathroom with WC 3.6 m2
07 Bedroom 13.8 m2
08 Corridor 11.6 m2
09 Pantry 1.7 m2
10 Hall WC 1.7 m2
11 WC 1.8 m2
Partitions, pillars and shafts 12.4 m2
total area 169.3 m2
01 storage premises 4.7 m2
12 terrace 14 m2
13 terrace 19.3 m2
storage premises SK01.39
Garage parking G01.01
Garage parking G01.02
cena garážových stání* display the price
*Cena jednotky nezahrnuje garážové stání.
floor plan
Byt D6.1

was there nothing you liked in our range?

Our company City Home offers affordable housing units, commercial premises or also warehouses and offices in the center of Prague and its immediate surroundings.

Generate PDF