0

My catalog

You have selected these properties for you catalogue. If interested, you can sort individual items as needed, take them out of the catalogue or add items viewed earlier. Complete downloading of the catalogue by clicking the button "Download my catalogue“.

Selected properties

flat residence area Card of properties transaction remove from the catalog

download catalog | Download catalogue / price list

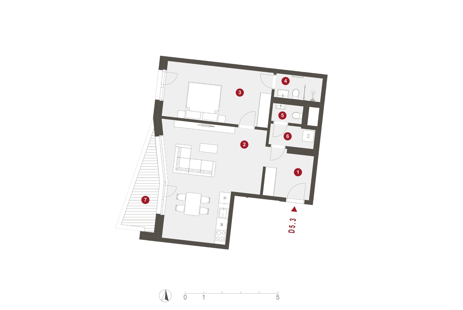
Byt D5.3

5.NP

disposition area B/L/T transaction final price add to the catalogue
2 bedrooms + kitchen corner
64.4 m2
B
sale
sold
kk - Kitchen corner | B - balcony | L - lodge | T - terrace
 
Unit area 64.4 m2
01 Entrance hall (foyer) 6.4 m2
02 Living room + KK 28.7 m2
03 Bedroom 17.2 m2
04 Bathroom with WC 3.2 m2
05 WC 1.8 m2
06 Hall WC 2.7 m2
Partitions, pillars and shafts 4.4 m2
total area 74.8 m2
01 Basement (cellar) 4.6 m2
07 balcony 5.8 m2
Garage parking G02.64
Basement (cellar) SK01.25
cena garážového stání*
*Cena jednotky nezahrnuje garážové stání.
floor plan
Byt D5.3

was there nothing you liked in our range?

Our company City Home offers affordable housing units, commercial premises or also warehouses and offices in the center of Prague and its immediate surroundings.

Generate PDF