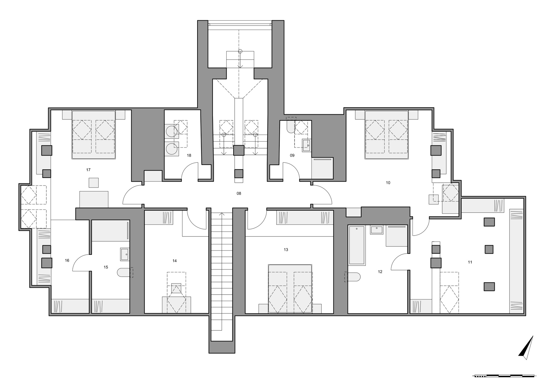
POSSIBILITY OF CONSTRUCTING A MAISONETTE
We offer for sale a residential unit on the 4th floor and attic space intended for construction on the 5th floor. Part of the project is the possibility of building a generous duplex apartment with a 6+kk layout, which will be created by connecting these units. A great advantage of this property is the beautiful common garden - a quiet place to relax, meet and rest. The garden will be newly renovated and will offer a pleasant environment for spending free time. A new feature will be a glass elevator located on the rear facade of the house, which will increase the comfort of all residents. The property represents an extraordinary opportunity for both investors and those interested in above-standard housing in a sought-after location with excellent access to the center of Prague.
Generate PDF
