0

Мой каталог

Эту недвижимость Вы выбрали в свой каталог. Если Вы захотите, то можете распределять отдельные позиции по необходимости, удалять из каталога или наоборот, добавлять из ранее просмотренных позиций. Скачивание каталога завершите нажатием на кнопку «скачать мой каталог».

Выбранная недвижимость

Свойство резиденция площадь карта недвижимости транзакция удалить из каталога

скачать каталог | скачать каталог / прайс-лист

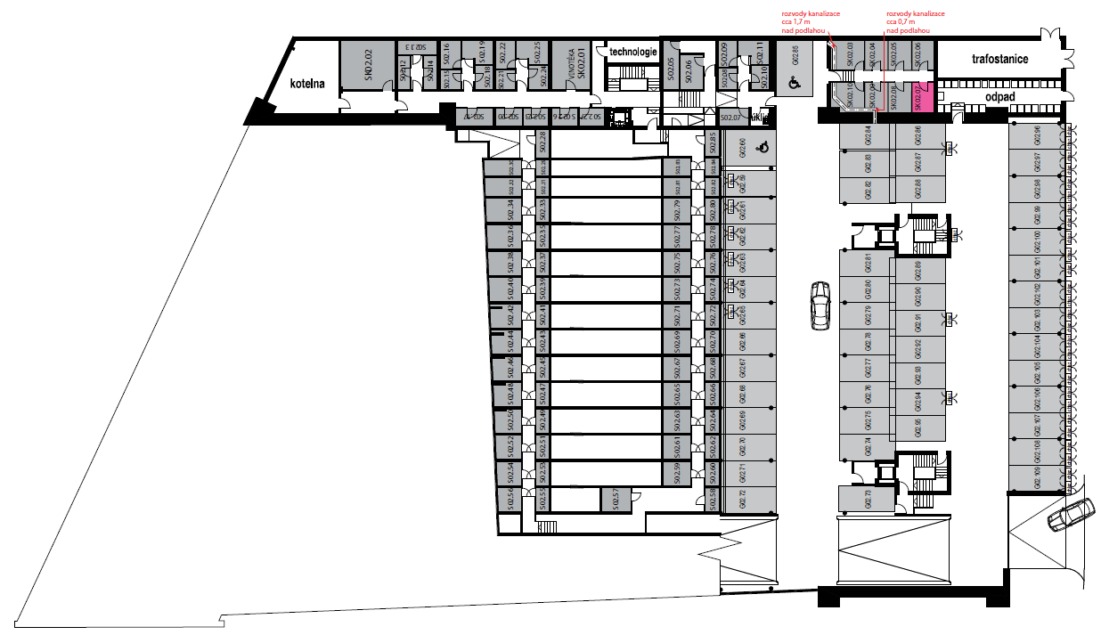
Sklad SK02.07

2.PP

планировка площадь Б/Л/Т транзакция Цена с НДС в каталог
Склад
5.9 m2
продажа
продано
кух. - кухня | Б - балкон | Л - лоджия | Т - терраса
 
общая площадь 5.9 m2
00 Склад 5.9 m2
Склад SK02.07

Генерирование файла PDF