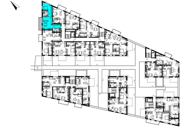
Byt A2.1
2.NP
| планировка | площадь | Б/Л/Т | транзакция | Цена с НДС | в каталог | 
|---|---|---|---|---|---|
| 2-комнатная квартира-студия | 74.8                                    m2 | B | продажа | продано | 
                кух. - кухня |
                Б - балкон |
                Л - лоджия                |
                Т - терраса                
				                             
			| PLOCHA JEDNOTKY | 74.8 m2 | 
|---|---|
| 01 Входное фойе | 8.2 m2 | 
| 02 Гостиная + кухня | 32.1 m2 | 
| 03 Спальня | 21.3 m2 | 
| 04 Ванная с туалетом | 5.7 m2 | 
| 05 Туалет / Прихожая | 3.1 m2 | 
| 06 Туалет | 2.3 m2 | 
| Перегородки, колонны и шахты | 2.1 m2 | 
| общая площадь | 85.9 m2 | 
| 07 балкон | 11.1 m2 | 
|---|
 
						                     
                 
										 
										 
										 
										