0

Мой каталог

Эту недвижимость Вы выбрали в свой каталог. Если Вы захотите, то можете распределять отдельные позиции по необходимости, удалять из каталога или наоборот, добавлять из ранее просмотренных позиций. Скачивание каталога завершите нажатием на кнопку «скачать мой каталог».

Выбранная недвижимость

Свойство резиденция площадь карта недвижимости транзакция удалить из каталога

скачать каталог | скачать каталог / прайс-лист

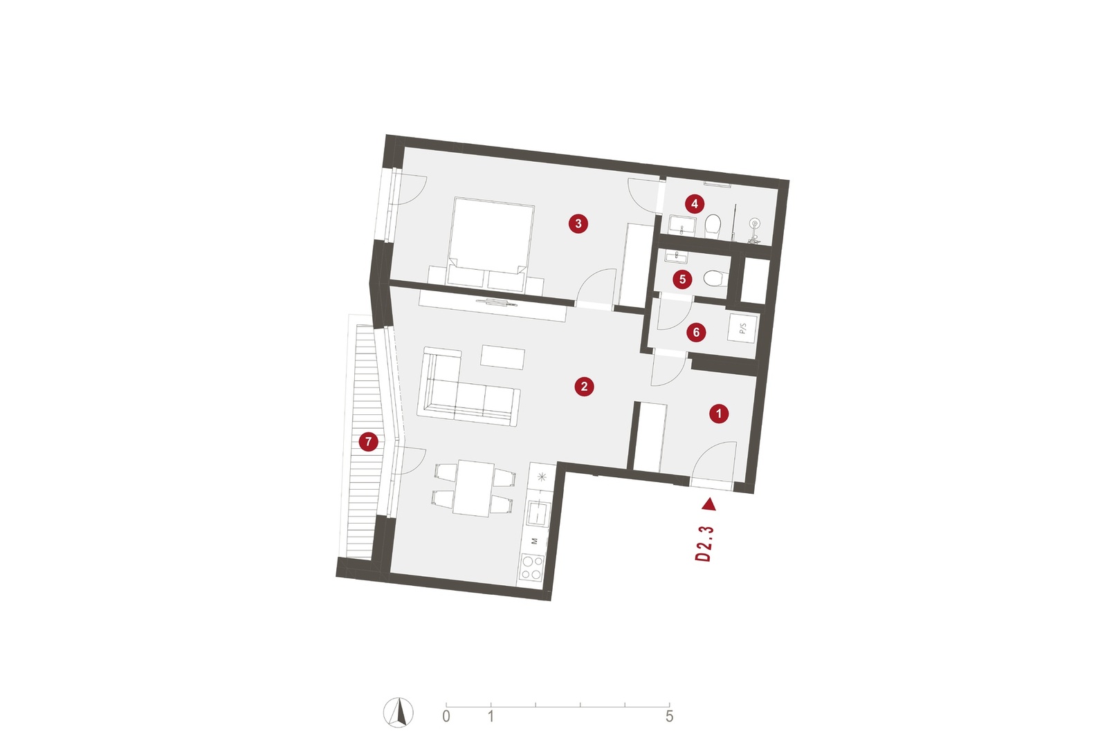
Byt D2.3

2.NP

планировка площадь Б/Л/Т транзакция Цена с НДС в каталог
2-комнатная квартира-студия
64.4 m2
B
продажа
изобразить цену
кух. - кухня | Б - балкон | Л - лоджия | Т - терраса
 
PLOCHA JEDNOTKY 64.4 m2
01 Входное фойе 6.4 m2
02 Гостиная + кухня 28.7 m2
03 Спальня 17.2 m2
04 Ванная с туалетом 3.5 m2
05 Туалет 1.8 m2
06 Прихожая туалет 2.7 m2
Перегородки, колонны и шахты 4.1 m2
общая площадь 69.2 m2
01 Подвал 1.8 m2
07 балкон 3 m2
Место для стоянки в гараже G02.83
Подвал SK01.16
план этажа
Byt D2.3

Генерирование файла PDF