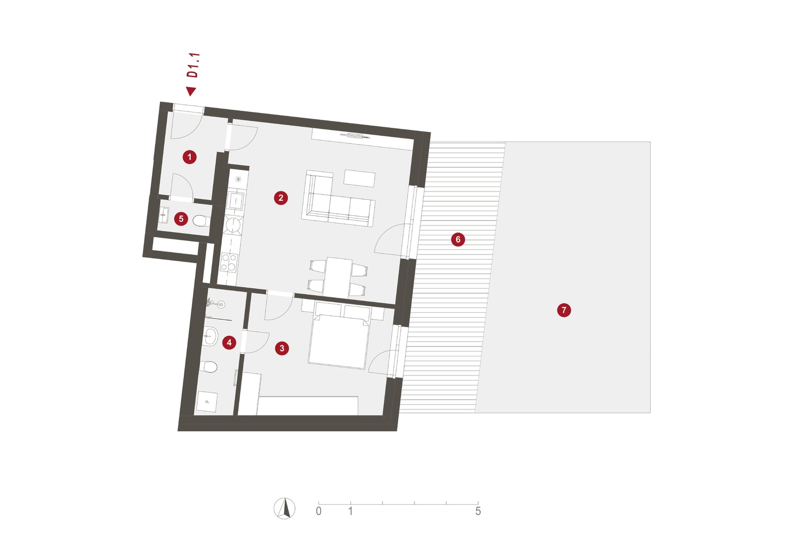
Byt D1.1
1.NP
                кух. - кухня |
                Б - балкон |
                Л - лоджия                |
                Т - терраса                
				                             
			| PLOCHA JEDNOTKY | 62.3 m2 | 
|---|---|
| 01 Входное фойе | 5 m2 | 
| 02 Гостиная + кухня | 29.8 m2 | 
| 03 Спальня | 16.4 m2 | 
| 04 Ванная с туалетом | 5.7 m2 | 
| 05 Туалет | 2.1 m2 | 
| Перегородки, колонны и шахты | 3.3 m2 | 
| общая площадь | 128 m2 | 
| 01 Подвал | 3.2 m2 | 
|---|---|
| 06 терраса | 9.9 m2 | 
| 07 Веранда с зеленью | 52.6 m2 | 
 
						                     
                