0

Мой каталог

Эту недвижимость Вы выбрали в свой каталог. Если Вы захотите, то можете распределять отдельные позиции по необходимости, удалять из каталога или наоборот, добавлять из ранее просмотренных позиций. Скачивание каталога завершите нажатием на кнопку «скачать мой каталог».

Выбранная недвижимость

Свойство резиденция площадь карта недвижимости транзакция удалить из каталога

скачать каталог | скачать каталог / прайс-лист

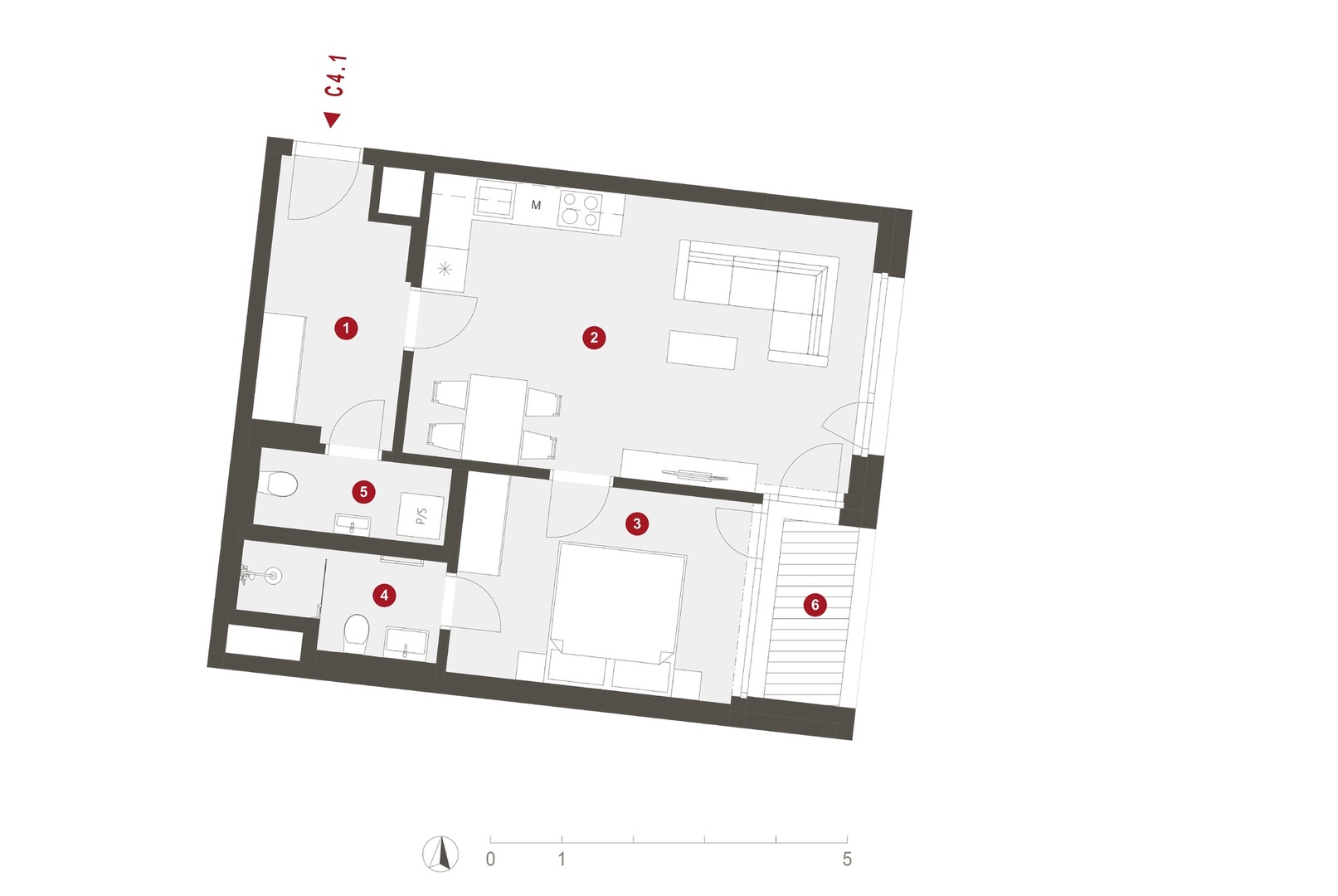
Byt C4.1

4.NP

планировка площадь Б/Л/Т транзакция Цена с НДС в каталог
2-комнатная квартира-студия
54.7 m2
L
продажа
продано
кух. - кухня | Б - балкон | Л - лоджия | Т - терраса
 
PLOCHA JEDNOTKY 54.7 m2
01 Входное фойе 7.1 m2
02 Гостиная + кухня 24.6 m2
03 Спальня 11.4 m2
04 Ванная с туалетом 3.9 m2
05 Туалет 3.1 m2
Перегородки, колонны и шахты 4.6 m2
общая площадь 62 m2
01 Подвал 4.6 m2
06 лоджия 2.7 m2
Место для стоянки в гараже G01.05
Подвал SK01.07
план этажа
Byt C4.1

Генерирование файла PDF