0

Мой каталог

Эту недвижимость Вы выбрали в свой каталог. Если Вы захотите, то можете распределять отдельные позиции по необходимости, удалять из каталога или наоборот, добавлять из ранее просмотренных позиций. Скачивание каталога завершите нажатием на кнопку «скачать мой каталог».

Выбранная недвижимость

Свойство резиденция площадь карта недвижимости транзакция удалить из каталога

скачать каталог | скачать каталог / прайс-лист

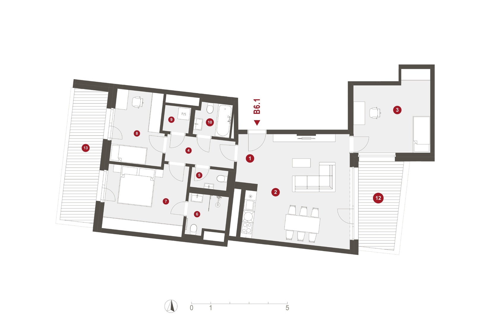
Byt B6.1

6.NP

планировка площадь Б/Л/Т транзакция Цена с НДС в каталог
4-комнатная квартира-студия
98.2 m2
T
продажа
17 890 000 CZK
кух. - кухня | Б - балкон | Л - лоджия | Т - терраса
 
PLOCHA JEDNOTKY 98.2 m2
01 Входное фойе 3.6 m2
02 Гостиная + кухня 28.6 m2
03 Спальня 15.4 m2
04 Коридор 5.1 m2
05 Туалет 2.4 m2
06 Ванная с туалетом 4.3 m2
07 Спальня 14.4 m2
08 Спальня 9.7 m2
09 Кладовка 1.8 m2
10 Ванная с туалетом 3.2 m2
Перегородки, колонны и шахты 9.7 m2
общая площадь 126.9 m2
01 Подвал 6.1 m2
11 терраса 10 m2
12 терраса 12.6 m2
Место для стоянки в гараже G01.35
Место для стоянки в гараже G01.36
Подвал SK01.51
план этажа
Byt B6.1

Генерирование файла PDF