Мой каталог

Эту недвижимость Вы выбрали в свой каталог. Если Вы захотите, то можете распределять отдельные позиции по необходимости, удалять из каталога или наоборот, добавлять из ранее просмотренных позиций. Скачивание каталога завершите нажатием на кнопку «скачать мой каталог».

Выбранная недвижимость

Свойство резиденция площадь карта недвижимости транзакция удалить из каталога

скачать каталог | скачать каталог / прайс-лист

Studio A2.5

2.NP

планировка площадь Б/Л/Т транзакция Цена с НДС в каталог
1-комнатная квартира-студия
30.8 m2
T
продажа
продано
кух. - кухня | Б - балкон | Л - лоджия | Т - терраса
 
PLOCHA JEDNOTKY 30.8 m2
01 Прихожая 5.8 m2
02 Гостиная + кухня 19.1 m2
03 Ванная с туалетом 4.6 m2
Перегородки, колонны и шахты 1.3 m2
общая площадь 48 m2
00 Подвал 4.3 m2
04 терраса 6.9 m2
05 Веранда с зеленью 4.2 m2
06 Веранда с зеленью 1.8 m2
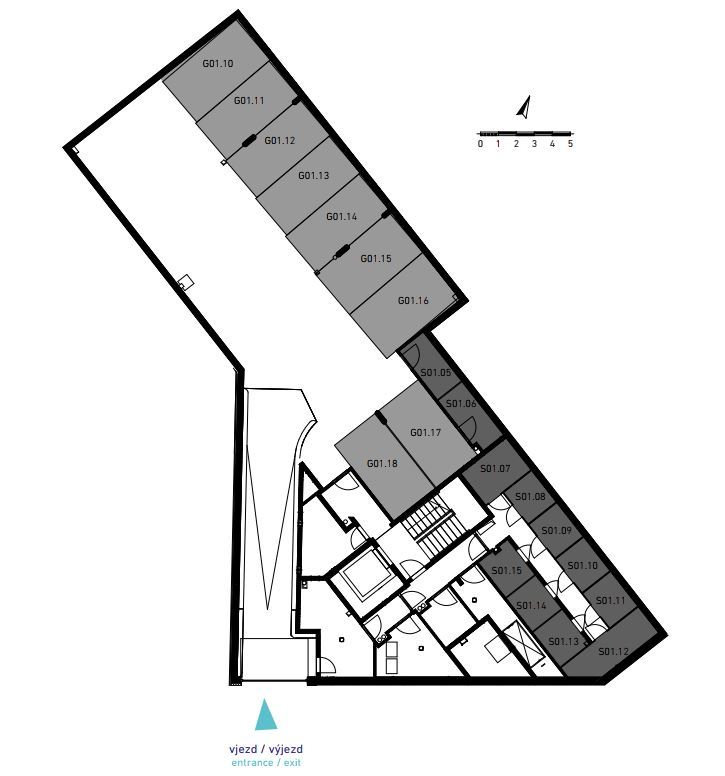
Место для стоянки в гараже G01.18
Подвал S01.14
план этажа
Studio A2.5
Garážové stání
Garážové stání

Генерирование файла PDF

Nemovitost přidána do katalogu